Vente Programme neuf 3 chambres à Le Barcares - L'Agence Barcares

Programme neuf 3 chambres en vente à Le Barcares

423 800 €

Nbre de pieces
4 pièce(s)
Surface habitable
70,30 m2

Ce bien vous intéresse

Programme neuf

Le Barcares

Réf. : CART4

423 800 €

Programme neuf 3 chambres

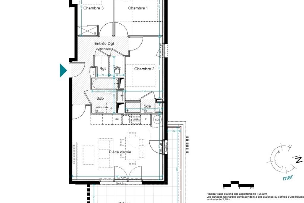
Dans un écrin de verdure à deux pas de la plage, ce programme neuf haut de gamme propose des appartements du T1 au T4 avec de belles terrasses, des prestations soignées et des matériaux de qualité, offrant un cadre de vie élégant entre nature et confort La résidence sécurisée dispose d'une piscine, de parkings privatifs et d'un accès direct à la mer, tout en restant proche des commerces et commodités, idéale pour une résidence principale, secondaire ou un investissement. Les informations sur les risques auxquels ce bien est exposé sont disponibles sur le site Géorisques "www.georisques.gouv.fr" Copropriété de 81 lots - dont 55 lots habitation. (Pas de procédure en cours). Charges annuelles : 2088 euros.

Caractéristiques

Nbre wc : 1
Nbre de pieces : 4
Nbre de chambres : 3
Nbre salle bain : 1
Surface habitable : 70,30 m2

Diagnostic de performance énergétique - DPE

ges.value

Résultat du diagnostique : A

cae.value

Biens similaires à votre recherche

Menu